Call Us Valuation

Search Properties

Fore Street, Hertford

Hertford

£385,000 Guide Price

  • Bedroom Icon x 2
  • Bathroom Icon x 2
Department:
Sales
Reference:
34499287
Postcode:
SG14 1BY
Type:
Apartment
Availability:
Sold STC
Tenure:
Leasehold
Leasehold Remaining:
148 years
Ground Rent:
£0
Service Charge:
£0
Council Tax Band:
C

Summary

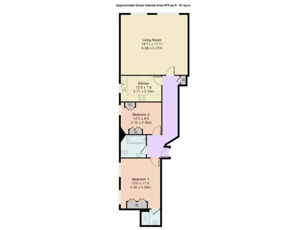
The apartment offers a generous and well balanced layout, designed to maximise natural light and flow throughout. The principal reception room is particularly impressive, featuring high ceilings, sash windows and attractive wooden flooring. Its proportions comfortably accommodate both relaxed seating and a dedicated dining area, creating a versatile space suited to everyday living as well as entertaining.

The kitchen is fitted with an extensive range of wall and base units, complemented by granite work surfaces and ample preparation space. Well arranged to allow room for appliances, it also benefits from a window that brings in natural light, making it both practical and enjoyable for daily use.

A spacious hallway leads to two well proportioned double bedrooms. The principal bedroom includes built in wardrobes and a stylish en suite shower room finished to a high standard. The second bedroom is also a comfortable double with fitted wardrobes and is served by a well appointed bathroom. Throughout the apartment, quality fixtures and fittings blend seamlessly with retained period features to create a refined and cohesive finish.

Externally, the building has recently undergone remedial works to the façade, including attention to the windows and redecoration, providing reassurance for years to come. The property is offered with a long lease of approximately 148 years remaining and benefits from no ground rent or service charge, an increasingly rare and valuable advantage.

Positioned on Fore Street, the apartment is moments from Hertford’s independent shops, restaurants and cafés, as well as Hertford East and Hertford North stations, offering convenient access into London.

Forming part of the landmark Grade II listed Egyptian House, dating from around 1825 and designed in the distinctive Egyptian Revival style, this is a rare opportunity to acquire a central Hertford home of genuine character and quality. Early viewing is highly recommended.

Floor Plans

Request Further Details

Or arrange a viewing

Latest News & Updates

How to Bleed Your Radiators 21st February Advice

How to Bleed Your Radiators

Eliminate Trapped Air for Optimal Radiator Performance Bleeding your radiators constitutes a vital aspect of preserving your heating system’s efficiency.…

Read More
How to Defrost Your Boiler's Condensate Pipe 2nd February Advice

How to Defrost Your Boiler's Condensate Pipe

Maintaining your boiler’s efficiency during the winter months is crucial, and understanding how to thaw your condensate pipe is a…

Read More
How to Repressurize Your Boiler 15th January Advice

How to Repressurize Your Boiler

Maintaining optimal pressure in your boiler is essential for its efficiency and longevity. One crucial aspect of boiler upkeep is…

Read More