Call Us Valuation

Search Properties

Wattle Road, Harlow

Harlow

£600,000

  • Bedroom Icon x 4
Department:
Sales
Reference:
34294377
Postcode:
CM17 0GE
Type:
House
Availability:
Sold STC
Tenure:
Freehold
Council Tax Band:
F

Summary

Morgan Alexander are delighted to present this beautifully maintained four-bedroom detached family home, ideally positioned on the highly sought-after Wattle Road within the popular Gilden Park development in Harlow.

Perfectly situated close to local shops, well-regarded schools, and local amenities, this impressive property also benefits from excellent transport links, with Harlow Mill train station and the new M11 Junction 7a just a short distance away.

The ground floor offers a welcoming entrance lobby with useful storage cupboards, a cloakroom/WC, and a bright and spacious lounge filled with natural light and featuring French doors leading out to the south-facing rear garden. There is also a versatile second reception room, ideal as a dining room or home office, with an attractive dual-aspect outlook.

The modern high-gloss kitchen includes a range of wall and base units, integrated appliances, and ample space for a dining table, with direct access to the garden. The garage has been professionally converted into a fully functional gym, offering excellent flexibility for modern family living.

Upstairs, the primary bedroom features bespoke fitted wardrobes and a luxury en-suite shower room. There are two further double bedrooms, a comfortable single bedroom, and a contemporary family bathroom.

Externally, the south-facing rear garden has been beautifully landscaped with a lawned area, raised planters, and patio spaces ideal for outdoor entertaining. To the front, the property benefits from off-street parking for at least two vehicles.

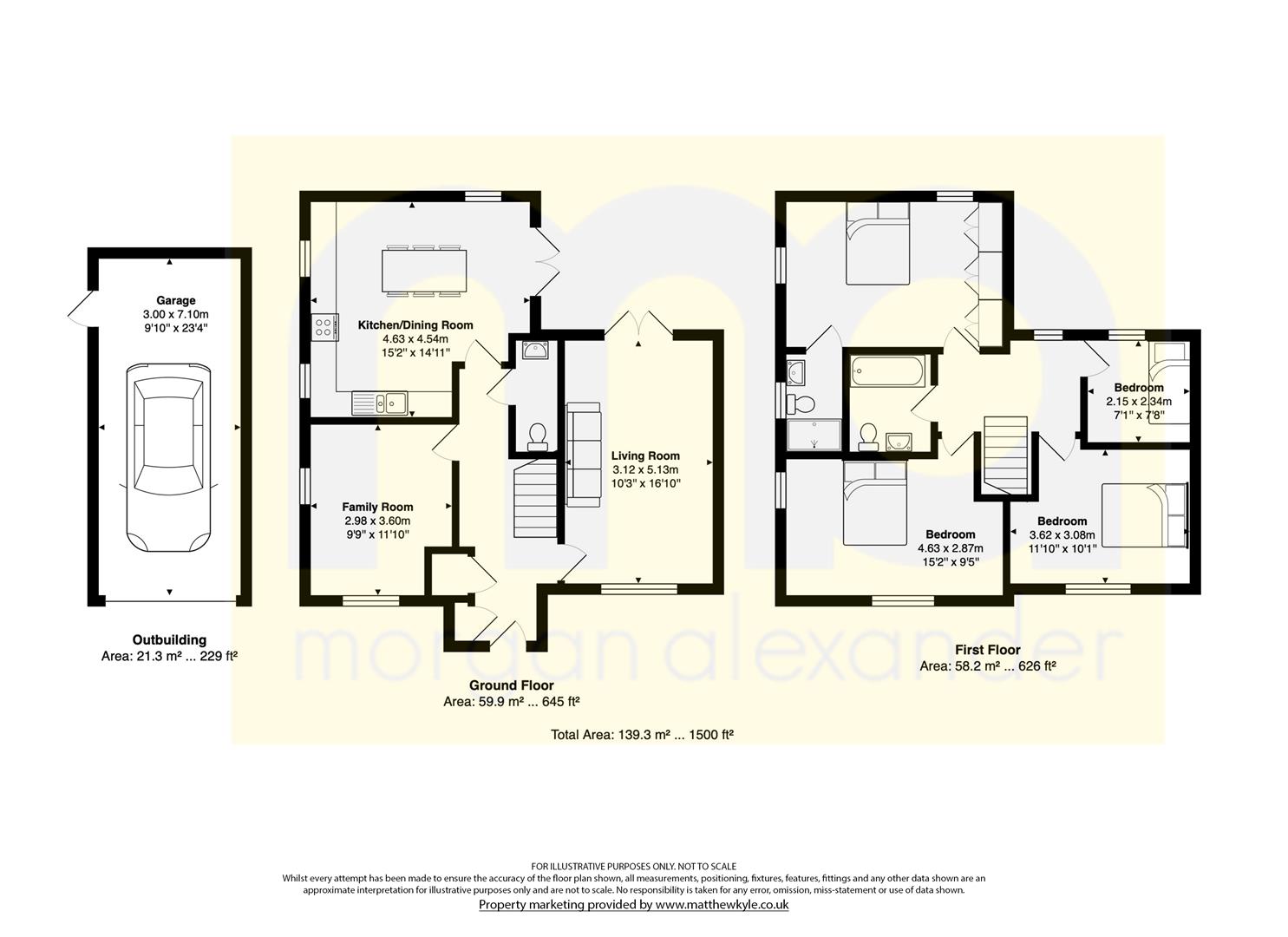
Floor Plans

Request Further Details

Or arrange a viewing

Latest News & Updates

How to Bleed Your Radiators 21st February Advice

How to Bleed Your Radiators

Eliminate Trapped Air for Optimal Radiator Performance Bleeding your radiators constitutes a vital aspect of preserving your heating system’s efficiency.…

Read More
How to Defrost Your Boiler's Condensate Pipe 2nd February Advice

How to Defrost Your Boiler's Condensate Pipe

Maintaining your boiler’s efficiency during the winter months is crucial, and understanding how to thaw your condensate pipe is a…

Read More
How to Repressurize Your Boiler 15th January Advice

How to Repressurize Your Boiler

Maintaining optimal pressure in your boiler is essential for its efficiency and longevity. One crucial aspect of boiler upkeep is…

Read More